U ovom forumu studenti publikuju rezultate aktuelne vežbe (ekranske prikaze i kratko objašnjenje / komentar). Ovaj materijal na kraju semestra ubacuju u svoj portfolio za predmet Integrisano modeliranje 2. Blagovremeno i korektno urađena vežba vrednuje se sa max. 5 poena.
Activity 06 - Vežba 06
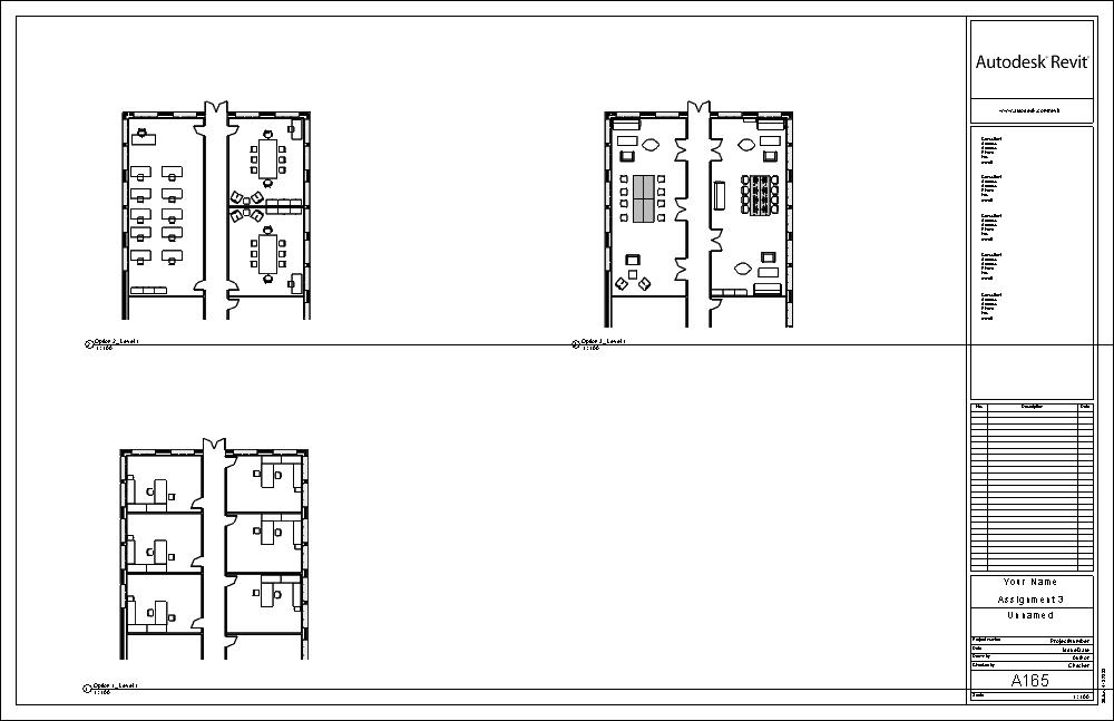
Prikazi varijantnih rešenja na primjeru enterijera, preko design options:




Pravljenje varijanti kancelarijskog prostora pomocu opcije design options..
Manage---> design options
Moze se napraviti novi option set i samo nova opcija
Kopiranje levela 1 i menjanjem njegovih opcija u meniju properties / visibility graphic...podesava se koja se opcija u kojoj osnovi moze videti
Posle zavrsetka kreiranja opcije ide se na design option i finish editing
Uvek postoji jedna opcija koja je oznacena kao primarna.
Kada se konacno odlucimo koju opciju zadrzavamo ..u prozoru desing option...prvo oznacimo koja nam je opcija primarna pa u podnaslovu set...kliknemo na dugme accept primary. Ostale varijante se u tom slucaju brisu.

1//Pomocu opcije design options, u ovom slucaju mogucnost pravljenja varijanti kancelarijskog namestaja.


































